Wohnung Nr.47 - 91,98 qm

PREIS: 1.499.000,00 €

  • Wohnfläche ca. 92,0 m2
  • Zimmer 3,0

81545

München

OBJEKT NR. 47

Ein Objekt der KWAG Neubau GmbH

BERATUNG

  • Christian Matzke
08915701430 [email protected]

BESCHREIBUNG

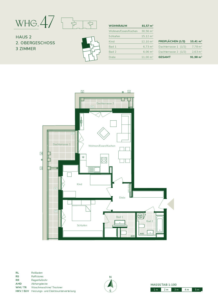
Diese großzügige 3-Zimmer-Wohnung im 2. Obergeschoss des Neubauprojekts Lauterer 18|24 bietet auf ca. 91,98 m² Wohnfläche modernes, hochwertiges Wohnen und durchdachte Raumaufteilung. Die Diele erschließt linkerhand das elegante Badezimmer mit Unterputz-Armaturen, Badewanne, Kaldewei Duschwanne, Handtuchheizkörper und großformatigen Fliesen. Angeschlossen liegt das Schlafzimmer mit Bad en Suite, das durch eine formschöne T-Lösung für Waschtisch, Dusche und WC besticht.

Weiter in der Diele liegt das Kinderzimmer, während rechts der abgetrennte offene Wohn-, Ess- und Kochbereich folgt – getrennt durch stumpf einschlagende Türen, die für ein elegantes Raumgefühl sorgen. Große Fensterfronten lassen viel Tageslicht herein und verbinden den Innenraum harmonisch mit dem Außenbereich.

Die Wohnung verfügt über zwei Dachterrassen: Die zweite Dachterrasse ist direkt vom Wohnbereich zugänglich. Die große Dachterrasse erstreckt sich über die gesamte Länge der Wohnung und ist sowohl vom Schlafzimmer, Kinderzimmer als auch vom Wohnbereich begehbar – ideal für Sonne, Privatsphäre und großzügige Außenflächen.

Ausstattungshighlights:

- Fußbodenheizung und -kühlung für komfortables Raumklima

- Extra hohe, stumpf einschlagende Innentüren

- Hochwertiger Echtholz-Parkettboden

- Großformatige Fliesen in beiden Bädern

- Raffstores im Wohnbereich

- Smart-Home-System zur Steuerung von Jalousien, Heizung und Video-Sprechanlage

- KfW-40-Effizienzhaus mit Wärmepumpe

- Aufzug von der TG ins DG

- Optionale Sonderwünsche möglich

OBJEKT

  • OBJEKTNR. 47
  • Zimmeranzahl 3,0
  • Wohnfläche ca. 92,0 m2
  • ETAGE 2
  • PERSONENAUFZUG Ja

ENERGIE

  • Energieausweis Informat. folgen

LAGE

Die Wohnung liegt in der gefragten Lautererstraße in Harlaching, eingebettet in ein ruhiges, grünes Quartier. Supermärkte, Cafés, Restaurants, Apotheken und Ärzte sind fußläufig erreichbar, ebenso Schulen, Kindergärten und Betreuungsangebote.

Die U-Bahnlinie U1 sowie die Tram 25 sind nur wenige Minuten zu Fuß entfernt und ermöglichen schnelle Verbindungen in die Innenstadt. Carsharing- und Bikesharing-Angebote direkt vor der Haustür erleichtern die flexible Mobilität.

Der historische Baumbestand der Anlage schafft ein ruhiges, naturnahes Wohngefühl. Naherholungsgebiete wie der Perlacher Forst, die Isarauen und der Tierpark Hellabrunn sind fußläufig oder in wenigen Minuten erreichbar und bieten zahlreiche Möglichkeiten für Spaziergänge, Sport und Freizeit im Grünen.

KOSTEN

  • PREIS 1.499.000,00 €
Es wird derzeit nur der Portrait-Modus unterstützt, bitte drehen Sie Ihr Smartphone.