Grundstück mit Altbestand Pfaffenhofen

PREIS: 620.000,00 €

  • Grundstücksfläche ca. m2

85276

Pfaffenhofen

OBJEKT NR. 28

Ein Objekt der KWAG Neubau GmbH

BESCHREIBUNG

Bei diesem Objekt handelt es sich um ein großzügiges Grundstück in sehr guter Lage von Pfaffenhofen. 

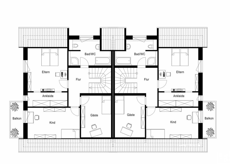
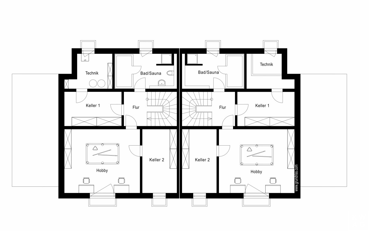
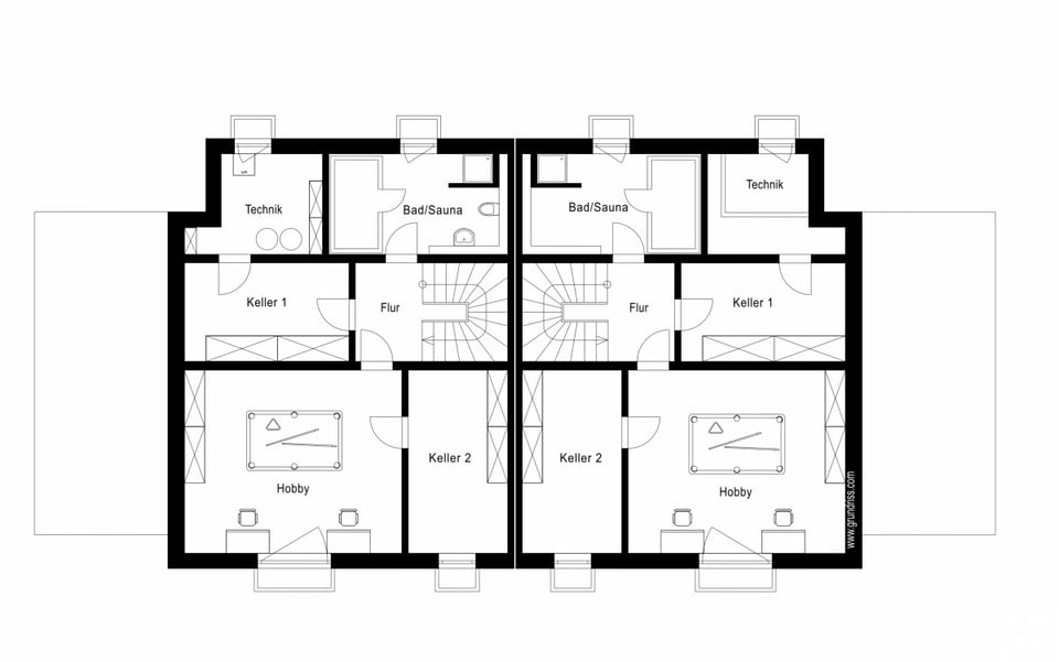
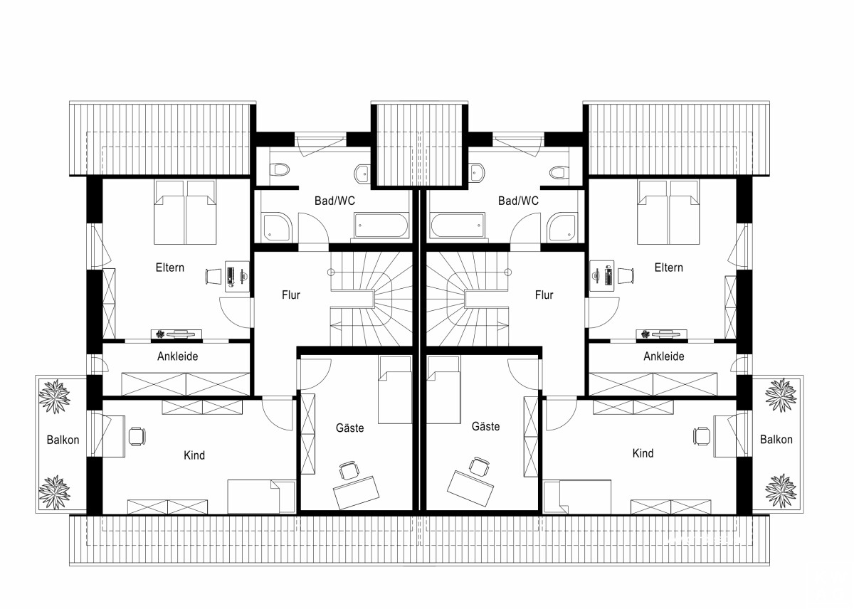
Da wir für das Grundstück bereits im Vorfeld eine Baugenehmigung erwirkt haben und zudem eine fertige Planung vorliegt, könnten Sie kurzfristig mit dem Bau Ihres zukünftigen Zuhauses beginnen. Den Planungsvorschlag des Architekten finden Sie in den Objektbildern.

Natürlich sind Sie nicht an die bestehende Planung gebunden. Auch lassen sich in der Planung weitere Änderungen vornehmen. 

Auf dem ca. 676 m² großen Grundstück ist ein Doppelhaus mit einer Wohnfläche von ca. 350 m² realisierbar. Somit hat jedes Haus eine Wohnfläche von ca. 175 m². 

Das Grundstück ist zudem real teilbar, sodass beide Häuser eine eigene Flurstücknummer erhalten. Die geteilten Grundstücke haben dann eine Grundstückfläche von jeweils ca. 338 m².

Der Abriss des Altbestandes muss noch durchgeführt werden. 

OBJEKT

  • OBJEKTNR. 28
  • Gartenfläche ca. 676,0 m2

LAGE

Das nach Süden ausgerichtete Grundstück befindet sich in einem absolut ruhig gelegenen und gut gewachsenen Wohngebiet und ist vorwiegend umgeben von Einfamilienhäusern und Doppelhäusern. Das Grundstück ist auf einer Anhöhe, knapp zwei Kilometer vom Zentrum Pfaffenhofens entfernt. Dort finden Sie Schulen, Kindertagesstätten, Einkaufszentrum, Ärzte und alles Weitere für Ihren täglichen Bedarf. 

Pfaffenhofen liegt an der B13, die von Ingolstadt nach München führt. Auch die Autobahnauffahrt Pfaffenhofen ist nur ca. zehn Kilometer entfernt. Somit ist eine optimale Anbindung gegeben. 

Ingolstadt und München erreichen Sie somit in jeweils 40 Minuten.  

Mit der Bahn sind Sie sogar in unter 20 Minuten in Ingolstadt und München in unter 40 Minuten.

KOSTEN

  • PREIS 620.000,00 €
Es wird derzeit nur der Portrait-Modus unterstützt, bitte drehen Sie Ihr Smartphone.